CREE Hotel Solution
Future-Proof Urban Hotels
Positioned at the intersection of innovation and sustainability, the CREE Hotel Solution leverages our proven, prefabricated timber-hybrid building method and its innovative processes to deliver future-proof urban hotels. It is tailored to create hotels that are both eco-friendly and highly efficient and meet the unique needs of the hotel industry.
This fast and yet flexible building solution, ideal for an urban environment, sets new standards in project delivery time, planning and cost certainty, as well as quality and operation efficiency.
The CREE Hotel Solution delivers outstanding results in hotel development and operation. Our approach not only streamlines construction processes, but also upholds the highest standards of quality in a cost-effective manner.
Whether you are a developer, hotel brand, or investor, the CREE Hotel Solution offers a future-proof building method for your next projects.
Resource-Efficient and Sustainable
Cost Certainty
Systemized and Prefabricated
Flexible Interior & Exterior Design
Increased Productivity & Fast Project Delivery
Benefits
Making It Your Ideal Choice
Developers
Faster construction time by up to 50% with prefabricated building components, and significantly reduced interior fit-out duration with prefabricated MEP rack systems and prefabricated wet room components.
Reduced labor and material costs due to streamlined construction processes without compromising on quality.
Meet and exceed environmental regulations with up to 60% reduction in carbon footprint over a building’s lifecycle, 60% reduction in construction waste, 50% reduction in concrete use, and a 41% reduction in steel use.
Modular system adaptable to various design requirements now and for refurbishments in the future, offering extensive customization options and ensuring versatility across different pojects.
High precision and consistency in construction, ensuring superior build quality, supported by a well-established local supply chain and network approach to minimize construction risks and uncertainties.
Faster project delivery with prefabricated solutions, lowered construction and operational costs, boosting overall profitability. The earlier stabilization of the asset compared to conventional construction leads to optimal cost control and quicker returns on investment.
Hotel Brands
Enhance your brand’s appeal with cutting-edge, sustainable architecture that attracts eco-conscious travelers.
Integrated and innovative building services solutions can lower operational costs and contribute to a greener footprint
Position your brand as a leader in sustainable hospitality, aligning with global sustainability trends and consumer preferences.
Proven methods of sustainability awarded with green certifications, appealing to eco-conscious markets and users, and enhancing property value.
Modular system adaptable to various design requirements now and for refurbishments in the future, offering extensive customization options and creating unique, memorable guest experiences. Setting your properties apart from the competition.
Owners / Investors
Faster project delivery of up to 50%, with prefabricated solutions, lowered construction and operational costs, boosting overall profitability. The earlier stabilization of the asset compared to conventional construction leads to optimal cost control and quicker returns on investment.
Reduced labor and material costs due to streamlined construction processes without compromising on quality. Integrated and innovative building services solutions can lower operational costs and contribute to a greener footprint.
High-quality buildings that appeal to eco-conscious markets and users, achieving green building certifications by DGNB, WELL, LEED, BREEAM, and others, enhancing property value.
Architects
Proven modular system meets diverse design visions and requirements, offering extensive customization options and ensuring versatility across different projects.
Ensure precision of details and high accuracy of the CREE Systems prevent rework during execution.
Support from experienced network experts. The seamless integration of various stakeholders from the start ensures that every project benefits from cutting-edge technology, and high-quality standards.
Integrate cutting-edge, sustainable technologies into designs with less effort.
Design Flexibility
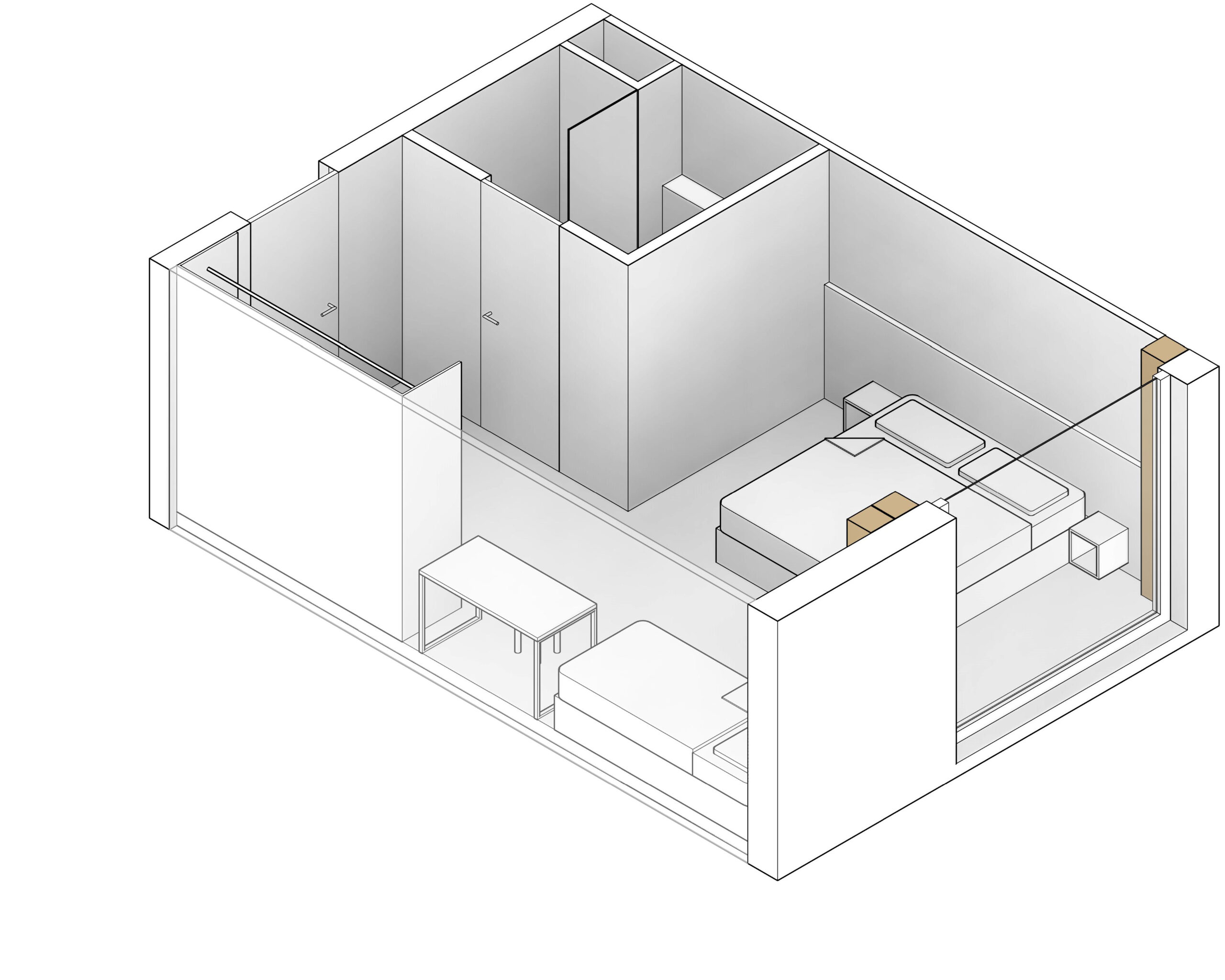
Various Room Configurations and Designs
The CREE Hotel Solution offers unparalleled layout flexibilities, allowing for various room configurations and designs.
This solution is designed to match your and your guests’ individual needs. With its capacity to evolve and adapt over its life cycle by altering the layout to meet changing needs, this system ensures future-fit buildings.
Flexible room types for unique needs.
Standard Room
16-30 m2
Family Room
25-45 m2
Superior Room
25-45 m2
Accessible Room
28-52 m2
Proven Success
Case Studies
Our existing CREE Hotels have already achieved outstanding results.
With an average 40% faster project delivery time and a reduced carbon footprint by more than 60% these CREE Hotels prove the success of this innovative building solution.
Guimaraes, Portugal
Taking timber-hybrid construction to the next level.
The First in Guimarães, Portugal consists of two 4-storey buildings – a hotel with 95 rooms, and a students’ residence offering 44 rented studio apartments as well as commercial space. Born as a beautiful product of aligned visions and collaborative partnership, this building complex shows a new approach to sustainable residential construction and demonstrates amazing new potentials for the use of the CREE System to the forward-thinking hotel developers worldwide.
Madrid, Spain
Introducing an innovative leap in sustainable construction.
The first CREE Building in Spain is making a grand entrance, featuring 120 hotel rooms. It’s not just an amazing collaborative work between two CREE Partners, the building is a narrative of speed, innovation, and sustainability.
In just 14 working days, the six floors of the innovative 4,500 m² building structure and its façades rise into the skyline. What makes this building extraordinary is not only its speed but its environmental consciousness.
CREE Hotel Solution
Download Case Study
This case study not only provides key insights on the challenges and solutions of the exemplary projects “The First” in Guimarães, Portugal, but also highlights the efficiency, sustainability, and innovation of the CREE Hotel Solution.
Fill in your email address and you will receive the case study to your inbox.
What Our Partners Say
Join us in leading the way towards the future of hospitality with efficient, sustainable, and innovative solutions.
Awards and Certifications
Certified Excellence
Sustainability is at the heart of each CREE Building Solution. Our projects have been recognized with prestigious certifications for their excellence in sustainability and innovation.
CREE Product Solutions
Tailored Solutions for Your Building Needs
Our innovative solutions offer tailored options for various asset classes. Each solution combines sustainability, efficiency, and cutting-edge technology to elevate your construction projects to the next level.
Hotels
Commercial
Student Housing








